Accedi al sito
Non ricordi la password?
Recupera password
torna al login
Serve aiuto?
HOME
CURRICULUM
PORTFOLIO
STRUCTURAL GEOTHECNICAL DESIGN
ITALY
GERMANY
FRANCE
SWITZERLAND
ARCHITECTURE
ITALY
GERMANY
FRANCE
INTERIOR DESIGN
COMPETITION
NON-DESTRUCTIVE TESTING
ATTIVITA' SCIENTIFICA
STRUMENTAZIONE
CONTATTI
GERMANY
ITALY
PORTFOLIO
»
STRUCTURAL GEOTHECNICAL DESIGN
»
ITALY
2012 - ORATORIO
/
2009 - RESIDENTIAL BUILDING
/
2005 - MADONNA DEL LAGO CHURCH
/
2005 - PRESS BUILDING - WINTER OLYMPIC GAMES
/
2004 - HISTORIC BRIDGE, MODICA
/
2004 - VILLA
/
2002 - PURIFIER
/
1995 - UNDERPASSES AND BRIDGES
/
1994 - SAN MICHELE ARCANGELO CHURCH
/
1994 - BUON GESU' CHURCH
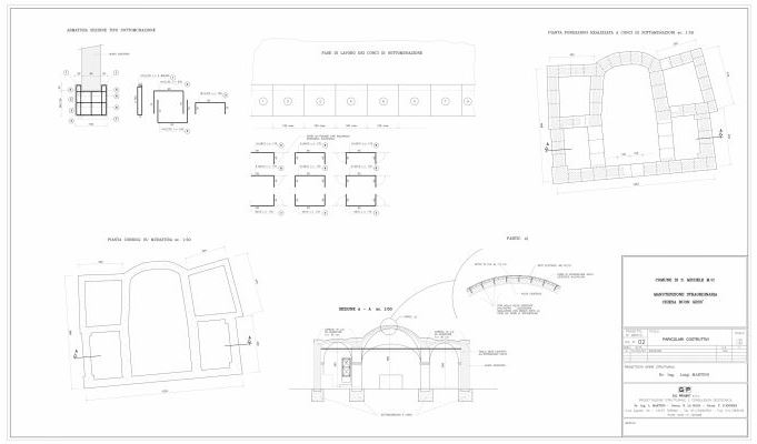
BUON GESU' CHURCH
CHIESA DEL BUON GESU'
1994
San Michele Mondovì (CN) - ITALY
Conservative restoration
Restauro conservativo
BUON GESU' CHURCH
BUON GESU' CHURCH
BUON GESU' CHURCH